Дизайн-проект однокомнатной квартиры для пары

Екатеринбург, 2020 г.

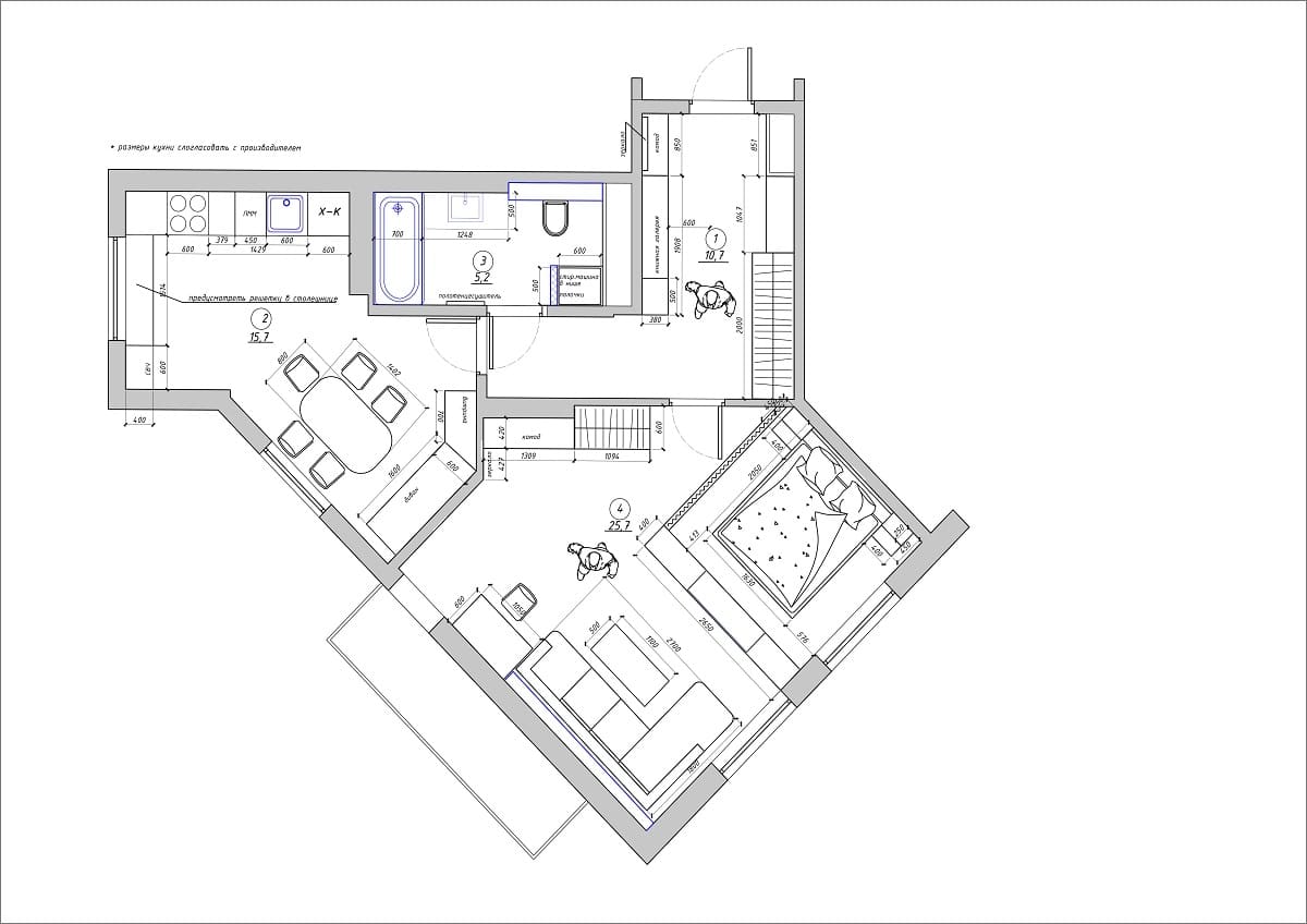
Сложная геометрия комнаты дала возможность для необычного планировочного решения.

интерьер дизайн проект однокомнатная квартира для семейной пары
интерьер дизайн проект однокомнатная квартира для семейной пары
интерьер дизайн проект однокомнатная квартира для семейной пары
интерьер дизайн проект однокомнатная квартира для семейной пары
интерьер дизайн проект однокомнатная квартира для семейной пары
интерьер дизайн проект однокомнатная квартира для семейной пары

Дизайнер Алена Серова

интерьер дизайн проект однокомнатная квартира для семейной пары